KAROS Project – Wonen op het Hoogste Punt van Kreta
Geïnspireerd door de mythe van Icarus en Daedalus presenteert Domisi het exclusieve IKAROS Project.
Op een perceel van 4.000 m² worden slechts twee woningen gebouwd.
Eén is al verkocht — de laatste villa is nog beschikbaar.
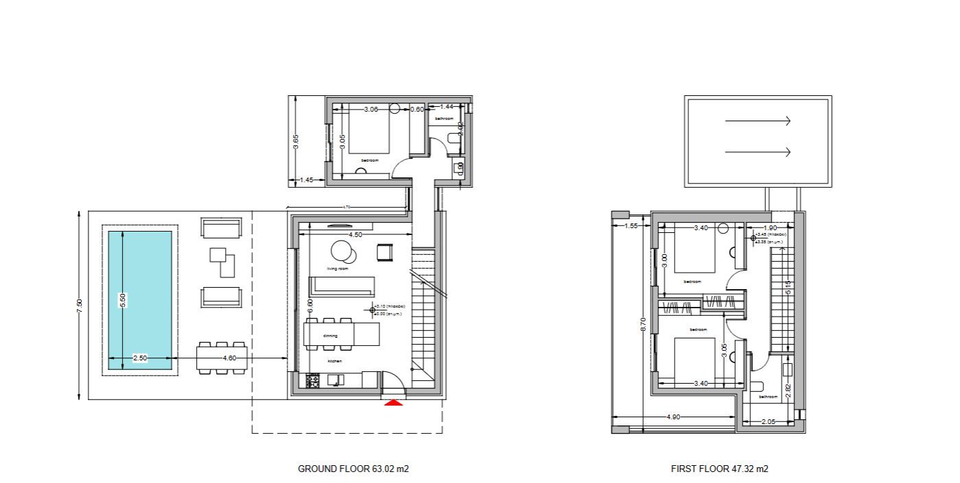
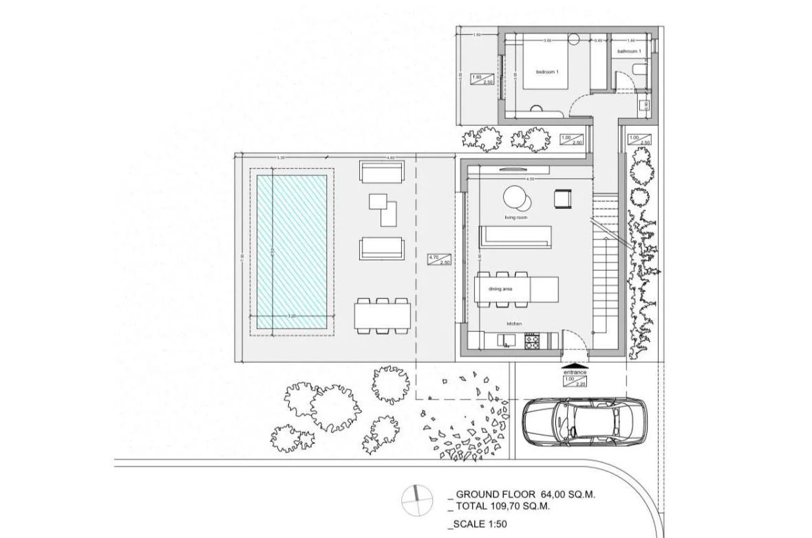
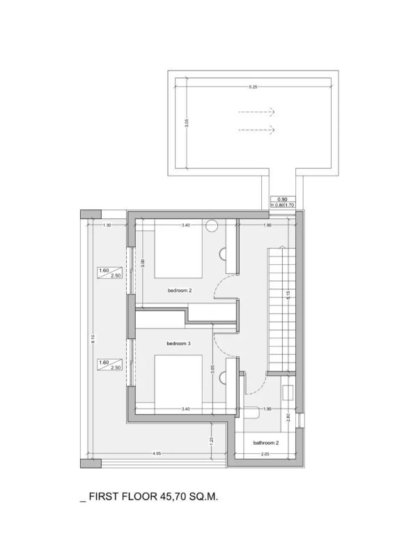
De villa beschikt over een privéperceel van meer dan 2.000 m² en biedt:
360° panoramisch zeezicht
Uitzicht van Souda tot Heraklion
Adembenemende zonsondergangen
Volledige rust en privacy
Toplocatie:
15 minuten van Rethymno
7 minuten van het strand
Dicht bij restaurants, cafés en toeristische voorzieningen
500 meter van traditionele Kretenzische tavernes
Beleef Kreta zoals het bedoeld is.
Een unieke combinatie van natuur, luxe en bereikbaarheid.
IKAROS – Leef boven alles.
| Regio | Agia Triada (Arkadi) |
|---|---|
| Kamers | 3 |
| Bouwjaar | In opbouw |
| Energie klasse |
A +
|
| Niveaus | 1 |
| Keukens | 1 |
| Woonkamers | 1 |
| Badkamers | 2 |
| Soort gebruik | Vastgoedbeleggingen, Geschikt voor professioneel gebruik, Korte termijn verhuur |
Plan een bezoek aan de woning of ons vragen om u te contacteren voor meer informatie. Deze applicatie is niet bindend met betrekking tot uw bezoek aan het pand. Zodra wij uw aanvraag ontvangen, zullen wij contact met u op.