Woning in aanbouw in Agia Paraskevi, Kreta
De woning in aanbouw in Agia Paraskevi, Kreta bestaat uit drie slaapkamers,
twee ruime badkamers en een grote open woonkamer. Het zal worden
gebouwd met lokale grijze steen en natuurlijke materialen, waardoor een
warme en gastvrije sfeer ontstaat.
De woning is gelegen binnen het dorp, met een goed uitzicht op Triopetra,
een van de meest beroemde stranden van Zuid-Kreta. Triopetra staat bekend
om zijn kristalheldere water, gouden zandstranden en pittoreske omgeving.
De woning is gelegen in een zeer rustige en ontspannende omgeving, die een
gevoel van welzijn en rust creëert. Ons bedrijf, dat verantwoordelijk is voor de
bouw van de woning, heeft 25 jaar ervaring in de bouw van
kwaliteitswoningen.
Specifieke kenmerken:
De woning beschikt over een bouwvergunning, waardoor het een zeer
aantrekkelijke optie is om te kopen.
De woning is gelegen in een gebied met weinig andere kwaliteitswoningen te
koop, waardoor het nog aantrekkelijker is.
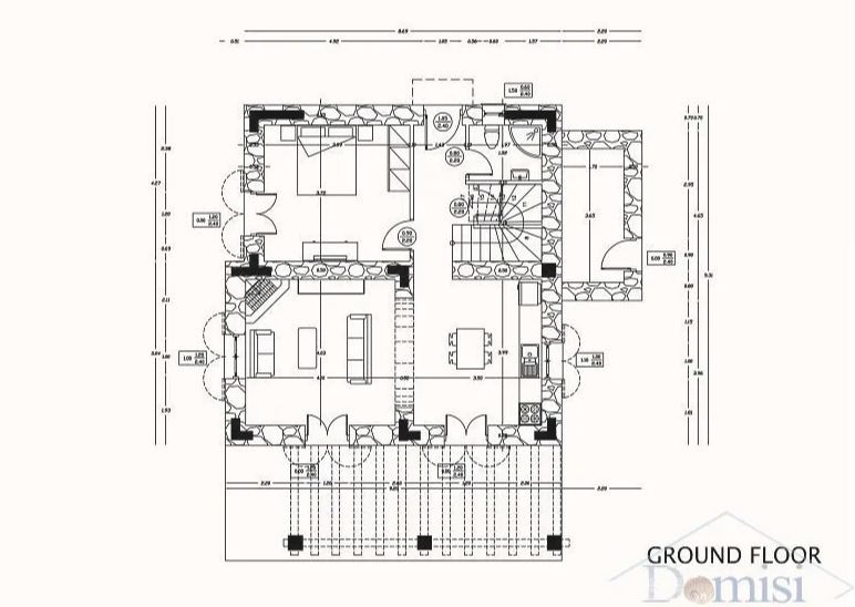
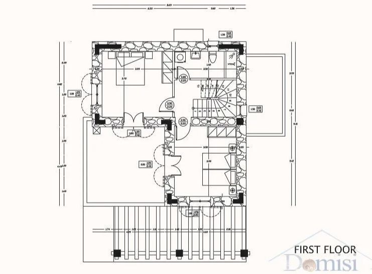
De woning is twee verdiepingen hoog, met de begane grond die de
woonruimtes herbergt en de eerste verdieping de slaapkamers.
| Prijs per m² | € 3.205 |
|---|---|
| Regio | Agia Paraskevi (Lampi) |
| Kamers | 3 |
| Verwarmingssysteem | Autonome verwarming |
| Energie klasse |
EEN
|
| Niveaus | 1 |
| Situatie | Gerenoveerd, Geschilderd |
| Extra | Luxe |
Plan een bezoek aan de woning of ons vragen om u te contacteren voor meer informatie. Deze applicatie is niet bindend met betrekking tot uw bezoek aan het pand. Zodra wij uw aanvraag ontvangen, zullen wij contact met u op.